


Listing Courtesy of: SPACE COAST / Coldwell Banker Realty / Claudia Pennington
534 Mimosa Street SW Palm Bay, FL 32908
Active (265 Days)
$438,360 (USD)
MLS #:
1048712
1048712
Lot Size
10,019 SQFT
10,019 SQFT
Type
Single-Family Home
Single-Family Home
Year Built
2026
2026
County
Brevard County
Brevard County
Community
Port Malabar Unit 31
Port Malabar Unit 31
Listed By
Claudia Pennington, Coldwell Banker Realty
Source
SPACE COAST
Last checked Mar 2 2026 at 11:38 AM GMT+0000
SPACE COAST
Last checked Mar 2 2026 at 11:38 AM GMT+0000
Bathroom Details
- Full Bathrooms: 2
- Half Bathroom: 1
Interior Features
- Ceiling Fan(s)
- Breakfast Nook
- Pantry
- Kitchen Island
- Vaulted Ceiling(s)
- Walk-In Closet(s)
- Eat-In Kitchen
- Primary Bathroom -Tub With Separate Shower
- Split Bedrooms
- Entrance Foyer
Kitchen
- Eat In Kitchen
- Kitchen Island
Subdivision
- Port Malabar Unit 31
Lot Information
- Cleared
Heating and Cooling
- Central
- Central Air
Flooring
- Carpet
- Tile
Exterior Features
- Impact Windows
Utility Information
- Utilities: Cable Available
- Sewer: Aerobic Septic
Garage
- Has Garage
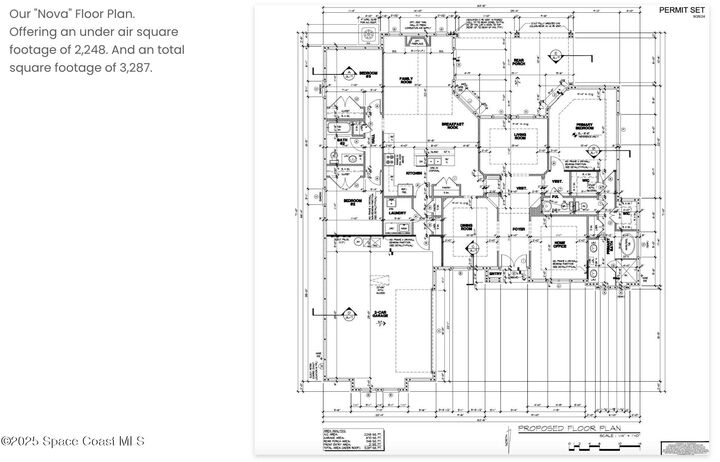
Living Area
- 2,248 sqft
Location
Disclaimer: Copyright 2026 Space Coast MLS. All rights reserved. This information is deemed reliable, but not guaranteed. The information being provided is for consumers’ personal, non-commercial use and may not be used for any purpose other than to identify prospective properties consumers may be interested in purchasing. Data last updated 3/2/26 03:38
Description